彦根市の物件は丸三不動産にお任せください!様々な条件からぴったりの物件をお探しいただけます。

売地物件ID:013261

  • 情報更新日:2024年07月18日

彦根市河原2丁目

  • 1,200万円 @14.64万/坪
  • 彦根市河原2丁目
  • 近江鉄道近江本線 ひこね芹川駅 徒歩10分

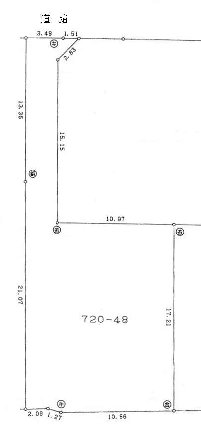
  • 271.06m²(81.99坪) 

  • 南西 

外観写真・内観写真

間取図

物件概要

現況 上物有 引渡 相談
土地面積 271.06m²(81.99坪) 接道状況 一方(接道方向:南西)
地目 宅地 用途地域 商業地域
建ぺい率 80% 容積率 400%
都市計画 市街化区域 土地権利 所有権
取引態様 仲介 建築条件
その他費用 - 小学校区 城東小学校
設備・条件 水道:公営/ガス:都市ガス/排水:下水
備考 ※現状有姿取引(上物・残置物あり) ※売主の契約不適合責任免責 ※セットバック要:20.79㎡

物件所在マップ

周辺施設
※情報更新のタイミング上、地図の施設情報は実際と異なる場合や、最新情報に更新されていない場合もございます。

ローンシミュレーション