
現況 | 更地 | 引渡 | 即時 |
---|---|---|---|
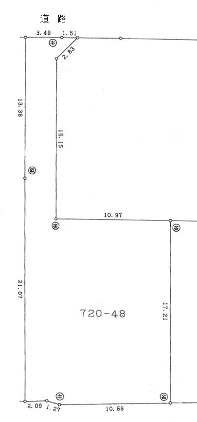
土地面積 | 162.23m²(49.07坪) | 接道状況 | 一方(接道方向:北西) |
地目 | 宅地 | 用途地域 | 第一種住居地域 |
建ぺい率 | 60% | 容積率 | 200% |
都市計画 | 市街化区域 | 土地権利 | 所有権 |
取引態様 | 仲介 | 建築条件 | 無 |
その他費用 | - | 小学校区 | 旭森小学校 |
設備・条件 | 水道:公営/ガス:都市ガス/排水:下水 | ||
備考 | ル・ベールコート・ジゾウ2 ※地蔵町自治会費が必要です(入町費10,000円・自治会費500円/月・基本財産の維持管理費500円/月) ※電柱あり |
周辺施設 | |||
---|---|---|---|