彦根市の物件は丸三不動産にお任せください!様々な条件からぴったりの物件をお探しいただけます。

売地物件ID:012164

  • 情報更新日:2022年10月03日

東沼波町プライムシティ 059号地

  • 1,236.3296万円 @24.80万/坪
  • 彦根市東沼波町
  • JR東海道線 南彦根駅 1200m

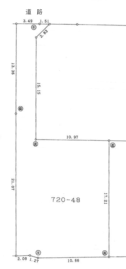
  • 164.80m²(49.85坪) 

  • 北東,南東 

外観写真・内観写真

  •  

間取図

物件概要

現況 更地 引渡 相談
土地面積 164.80m²(49.85坪) 接道状況 角地(接道方向:北東/南東)
地目 宅地 用途地域 第一種住居地域
建ぺい率 70% 容積率 200%
都市計画 市街化区域 土地権利 所有権
取引態様 仲介 建築条件
その他費用 - 小学校区 旭森小学校
設備・条件 水道:公営/ガス:都市ガス/排水:下水/電気有り
備考 -

物件所在マップ

周辺施設
※情報更新のタイミング上、地図の施設情報は実際と異なる場合や、最新情報に更新されていない場合もございます。

ローンシミュレーション