彦根市の物件は丸三不動産にお任せください!様々な条件からぴったりの物件をお探しいただけます。

売地物件ID:013954

  • 情報更新日:2025年03月11日

彦根市八坂町

  • 962.7万円 @15.00万/坪
  • 彦根市八坂町
  • JR東海道線 南彦根駅 -m

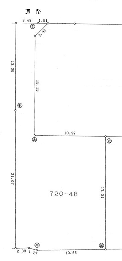
  • 212.18m²(64.18坪) 

  • 北西 

市立病院まで徒歩7分!

外観写真・内観写真

間取図

物件概要

現況 更地 引渡 即時
土地面積 212.18m²(64.18坪) 接道状況 一方(接道方向:北西)
地目 宅地 用途地域 第一種中高層住居専用地域
建ぺい率 60% 容積率 200%
都市計画 市街化区域 土地権利 所有権
取引態様 専任 建築条件
その他費用 - 小学校区 金城小学校
設備・条件 水道:公営/ガス:都市ガス/排水:下水
備考 市立病院まで徒歩7分!

物件所在マップ

周辺施設
※情報更新のタイミング上、地図の施設情報は実際と異なる場合や、最新情報に更新されていない場合もございます。

ローンシミュレーション