彦根市の物件は丸三不動産にお任せください!様々な条件からぴったりの物件をお探しいただけます。

売地物件ID:010964

  • 情報更新日:2026年05月08日

スマイルタウンUO 05号地

  • 1,153.45万円 @23.00万/坪
  • 彦根市宇尾町
  • JR東海道線 南彦根駅 徒歩20分

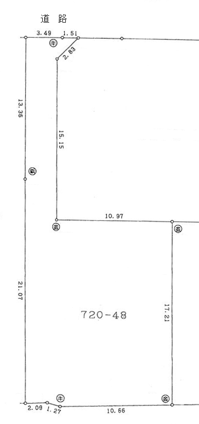
  • 165.79m²(50.15坪) 

  • 南西 

外観写真・内観写真

間取図

物件概要

現況 更地 引渡 相談
土地面積 165.79m²(50.15坪) 接道状況 一方(接道方向:南西)
地目 宅地 用途地域 第一種住居地域
建ぺい率 60% 容積率 200%
都市計画 市街化区域 土地権利 所有権
取引態様 仲介 建築条件
その他費用 - 小学校区 城南小学校
設備・条件 水道:公営/ガス:都市ガス/排水:下水/電気有り
備考 ※施設設備負担金:100,000円(1区画当り)税別 ※境界CBブロックフェンス負担金:13,000円(1m当り)税別、但し隣地との境界については折半(6,500円/m 税別) ※自治会入会費:100,000円(1所帯当り) ※自治会費:前期4,000円・後期4,000円/年 ※敷地内電柱有

物件所在マップ

周辺施設
※情報更新のタイミング上、地図の施設情報は実際と異なる場合や、最新情報に更新されていない場合もございます。

ローンシミュレーション