彦根市の物件は丸三不動産にお任せください!様々な条件からぴったりの物件をお探しいただけます。

売地物件ID:013400

  • 情報更新日:2024年02月01日

ホームタウン大堀III期 24号地

  • 1,166.1874万円 @21.50万/坪
  • 彦根市大堀町
  • JR東海道線 南彦根駅 徒歩31分

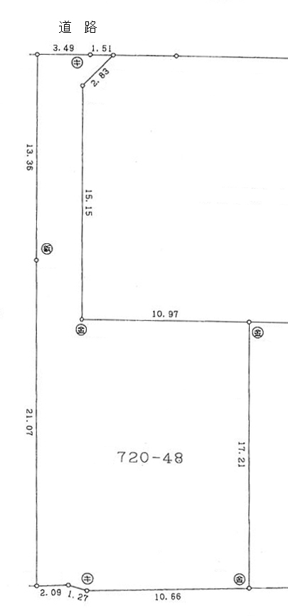
  • 179.31m²(54.24坪) 

  • 北西,北東,南西 

外観写真・内観写真

間取図

物件概要

現況 更地 引渡 即時
土地面積 179.31m²(54.24坪) 接道状況 三方(接道方向:北西/北東/南西)
地目 宅地 用途地域 第一種住居地域
建ぺい率 70% 容積率 200%
都市計画 市街化区域 土地権利 所有権
取引態様 仲介 建築条件
その他費用 - 小学校区 旭森小学校
設備・条件 水道:公営/ガス:都市ガス/排水:下水
備考 ※敷地内に電柱・支線有

物件所在マップ

周辺施設
※情報更新のタイミング上、地図の施設情報は実際と異なる場合や、最新情報に更新されていない場合もございます。

ローンシミュレーション