売買
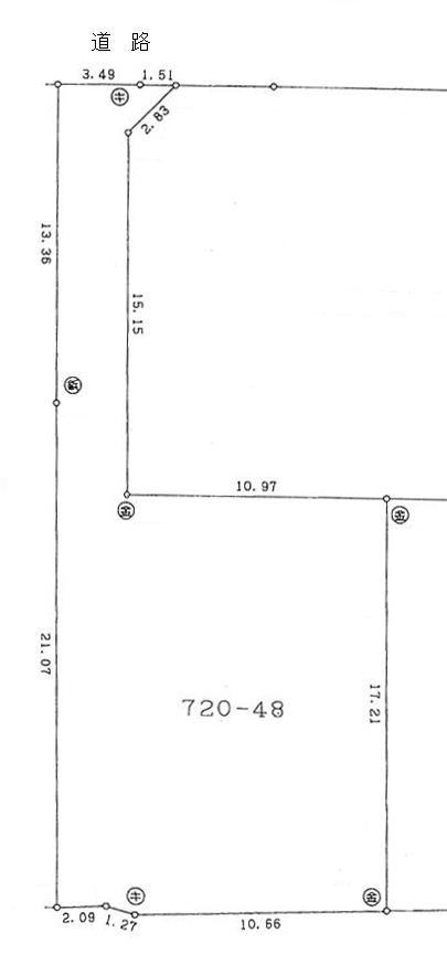
ホームタウン大堀III期 24号地 売地 1,166.1874万円
| 物件ID | 013400 |
|---|---|
| 所在地 | 彦根市大堀町 |
| 最寄り駅 | JR東海道線 南彦根駅 |
| 所要時間 | 徒歩31分 |
| 価格 |
1,166.1874万円 @21.50万/坪 |
| 地積(m²) | 179.31m²(54.24坪) |
| 現況 | 更地 |
| 引渡 | 即時 |
| 接道状況 | 三方(接道方向:北西/北東/南西) |
| 地目 | 宅地 |
| 用途地域 | 第一種住居地域 |
| 建ぺい率 | 70% |
| 容積率 | 200% |
| 都市計画 | 市街化区域 |
| 土地権利 | 所有権 |
| 建築条件 | 無 |
| 取引態様 | 仲介 |
| その他費用 | - |
| 設備・条件 | 水道:公営/ガス:都市ガス/排水:下水 |
| 小学校区 | 旭森小学校 |
| 備考 | ※敷地内に電柱・支線有 |
情報更新日時:2024年02月01日