売買
彦根市芹川町 売地 1,400万円
| 物件ID | 014167 |
|---|---|
| 所在地 | 彦根市芹川町 |
| 最寄り駅 | 近江鉄道近江本線 ひこね芹川駅 |
| 所要時間 | 徒歩10分 |
| 価格 |
1,400万円 @7.87万/坪 |
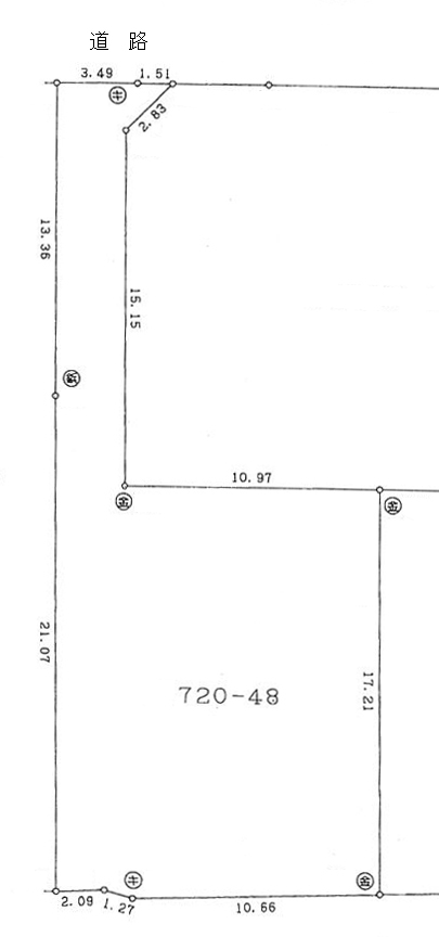
| 地積(m²) | 588.42m²(177.99坪) |
| 現況 | 上物有更地引渡 |
| 引渡 | 相談 |
| 接道状況 | 角地(接道方向:北/西) |
| 地目 | 宅地 |
| 用途地域 | 第一種住居地域 |
| 建ぺい率 | 60% |
| 容積率 | 200% |
| 都市計画 | 市街化区域 |
| 土地権利 | 所有権 |
| 建築条件 | 無 |
| 取引態様 | 仲介 |
| その他費用 | - |
| 設備・条件 | 水道:公営/ガス:プロパン/排水:下水 |
| 小学校区 | 佐和山小学校 |
| 備考 | ※解体更地渡し ※セットバック要 ※売主の契約不適合責任免責 |
情報更新日時:2025年12月22日