売買
グッドライフタウン野口・川瀬馬場 売地 1,222万円
| 物件ID | 014125 |
|---|---|
| 所在地 | 彦根市川瀬馬場町 |
| 最寄り駅 | JR東海道線 河瀬駅 |
| 所要時間 | 徒歩14分 |
| 価格 |
1,222万円 @17.10万/坪 |
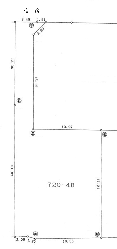
| 地積(m²) | 236.27m²(71.47坪) |
| 現況 | 更地 |
| 引渡 | 相談 |
| 接道状況 | 一方(接道方向:北西) |
| 地目 | 宅地 |
| 用途地域 | 第一種住居地域 |
| 建ぺい率 | 60% |
| 容積率 | 200% |
| 都市計画 | 市街化区域 |
| 土地権利 | 所有権 |
| 建築条件 | 無 |
| 取引態様 | 仲介 |
| その他費用 | - |
| 設備・条件 | 水道:公営/ガス:プロパン/排水:下水 |
| 小学校区 | 河瀬小学校 |
| 備考 | ※敷地内に電柱・支線有 ※団地施設負担金:250,000円、水道加入金(20mm):58,900円(建築時要) ※境界工事をされる場合、境界ブロックフェンス代が必要です |
情報更新日時:2025年12月24日