売買
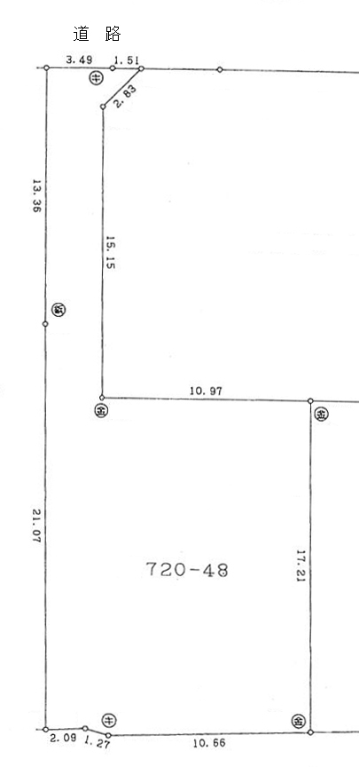
日夏町 02号地 売地 980万円
| 物件ID | 013194 |
|---|---|
| 所在地 | 彦根市日夏町 |
| 最寄り駅 | JR東海道線 河瀬駅 |
| 所要時間 | 徒歩22分 |
| 価格 |
980万円 @11.56万/坪 |
| 地積(m²) | 280.21m²(84.76坪) |
| 現況 | 更地 |
| 引渡 | 相談 |
| 接道状況 | 一方(接道方向:北西) |
| 地目 | 宅地 |
| 用途地域 | 無指定 |
| 建ぺい率 | 60% |
| 容積率 | 200% |
| 都市計画 | 市街化調整区域 |
| 土地権利 | 所有権 |
| 建築条件 | 無 |
| 取引態様 | 仲介 |
| その他費用 | - |
| 設備・条件 | ガス:プロパン |
| 小学校区 | 城陽小学校 |
| 備考 | ※建基法43条建築許可申請要 ※契約時売主指定の司法書士利用となります ※上水・下水の引込なし、配管引込費用は買主様負担となります |
情報更新日時:2026年04月24日