売買
彦根市地蔵町 売地 1,350万円
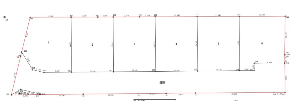
| 物件ID | 013990 |
|---|---|
| 所在地 | 彦根市地蔵町 |
| 最寄り駅 | 近江鉄道近江本線 彦根口駅 |
| 所要時間 | 徒歩18分 |
| 価格 |
1,350万円 @13.08万/坪 |
| 地積(m²) | 341.31m²(103.24坪) |
| 現況 | 上物有更地引渡 |
| 引渡 | 相談 |
| 接道状況 | 一方(接道方向:北東) |
| 地目 | 宅地 |
| 用途地域 | 第一種住居地域 |
| 建ぺい率 | 60% |
| 容積率 | 200% |
| 都市計画 | 市街化区域 |
| 土地権利 | 所有権 |
| 建築条件 | 無 |
| 取引態様 | 仲介 |
| その他費用 | - |
| 設備・条件 | 水道:公営/ガス:プロパン/排水:下水 |
| 小学校区 | 旭森小学校 |
| 備考 | ※解体更地渡し |
情報更新日時:2025年09月24日