売買
成宮邸 中古戸建 380万円
| 物件ID | 013837 | 
|---|---|
| 所在地 | 彦根市芹橋二丁目 | 
| 最寄り駅 | JR東海道線 彦根駅 | 
| 所要時間 | 徒歩21分 | 
| 価格 | 380万円 @11.09万/坪 | 
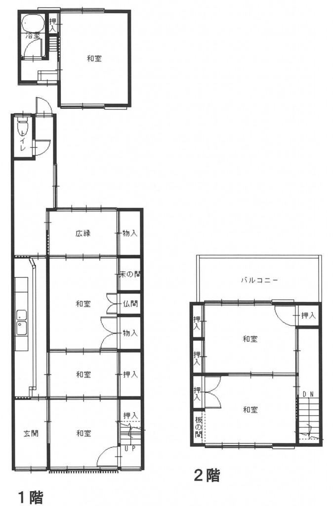
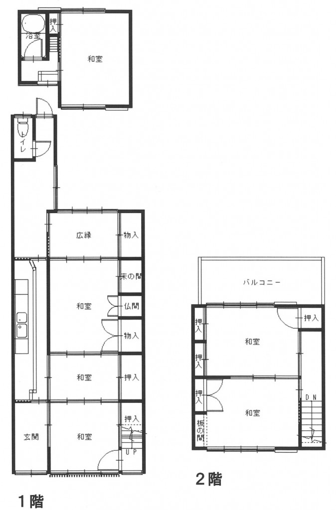
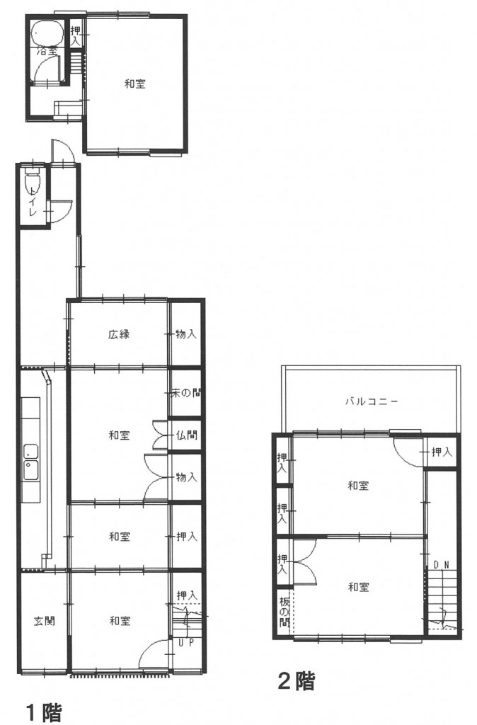
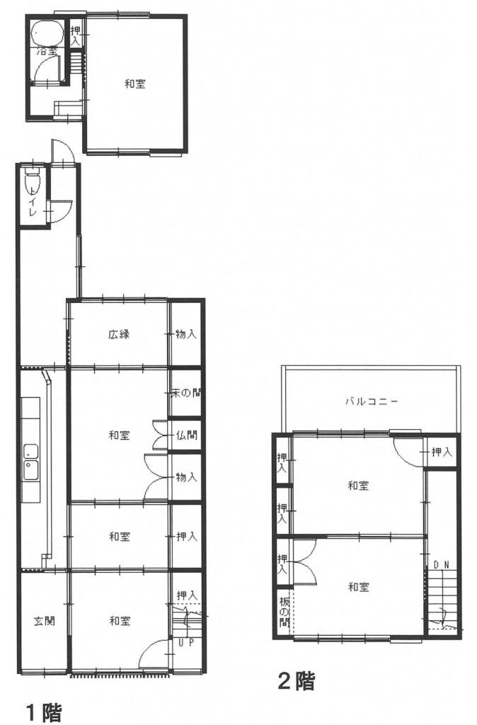
| 間取り | 6K | 
| 国土法 | 不要 | 
| 駐車場 / 料金 | 空無 | 
| 現況 | 空家 | 
| 引渡 | 相談 | 
| 接道状況 | 一方(接道方向:南東) | 
| 地目 | 宅地 | 
| 用途地域 | 第一種住居地域 | 
| 建ぺい率 | 60% | 
| 容積率 | 200% | 
| 都市計画 | 市街化区域 | 
| 土地権利 | 所有権 | 
| 建築条件 | 無 | 
| 取引態様 | 専任 | 
| その他費用 | - | 
| 設備・条件 | 水道:公営/ガス:都市ガス/排水:下水/専用バス/電気有り | 
| 小学校区 | 城西小学校 | 
| 備考 | ※二戸一棟の北側です。奥に未登記の木造建物有り(和室6畳・浴室・ロフト) ※現状有姿取引(売主の負う契約不適合責任免責) | 
情報更新日時:2024年12月04日