滋賀県彦根地域の不動産売買・賃貸は、丸三不動産にお任せください!
ご来店案内予約
物件リクエスト
会社概要
賃貸検索
0749-23-0303
月曜~土曜
定休日:日曜・祝日
9:00~17:00(土曜日のみ10時から)
ご希望のお客様には物件満載の情報誌をプレゼント!
売りたい!査定してほしい!も、お気軽にお問い合わせ下さい!
彦根市の物件は丸三不動産にお任せください!様々な条件からぴったりの物件をお探しいただけます。
売買物件
小学校区検索
売買TOPに戻る
小学校区検索
・鳥居本小学校
・城東小学校
・佐和山小学校
・旭森小学校
・高宮小学校
・河瀬小学校
・城北小学校
・城西小学校
・金城小学校
・平田小学校
・城南小学校
・城陽小学校
・若葉小学校
・亀山小学校
・稲枝東小学校
・稲枝西小学校
・稲枝北小学校
稲枝北小学校
土地
一戸建て
マンション
その他
1
1
0
一覧の並び替え:
所在地
|
最寄り駅
|
所要時間
|
価格
|
地積
|
接道方向
|
昇順で並び替え
降順で並び替え
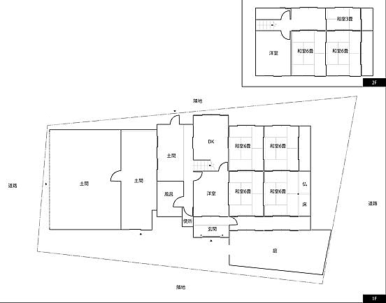
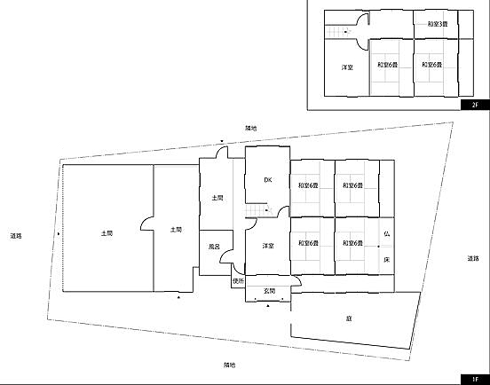
彦根市下西川町
300
万円
-
彦根市下西川町
JR東海道線 稲枝駅 徒歩40分
264.56m²
1968年月
東中学校区
・城東小学校
・佐和山小学校
・旭森小学校
西中学校区
・城北小学校
・城西小学校
中央中学校区
・金城小学校
・平田小学校
彦根中学校区
・高宮小学校
・河瀬小学校
南中学校区
・城南小学校
・城陽小学校
・若葉小学校
・亀山小学校
鳥居本中学校区
・鳥居本小学校
稲枝中学校区
・稲枝東小学校
・稲枝西小学校
・稲枝北小学校
記載以外の小学校