彦根市の物件は丸三不動産にお任せください!様々な条件からぴったりの物件をお探しいただけます。

売地物件ID:013002

  • 情報更新日:2025年09月09日

彦根市大藪町

  • 890万円 @16.94万/坪
  • 彦根市大藪町
  • JR東海道線 彦根駅 3345m

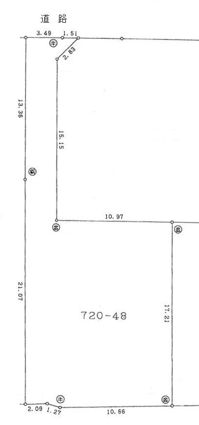
  • 173.71m²(52.54坪) 

  • 南東 

日当たり良好!

外観写真・内観写真

間取図

物件概要

現況 更地 引渡 相談
土地面積 173.71m²(52.54坪) 接道状況 一方(接道方向:南東)
地目 宅地 用途地域 第一種低層住居専用地域
建ぺい率 60% 容積率 100%
都市計画 市街化区域 土地権利 所有権
取引態様 専任 建築条件
その他費用 - 小学校区 金城小学校
設備・条件 水道:公営/ガス:都市ガス/排水:下水
備考 日当たり良好!
※現状有姿取引(売主の負う契約不適合責任免責条件付き)

物件所在マップ

周辺施設
※情報更新のタイミング上、地図の施設情報は実際と異なる場合や、最新情報に更新されていない場合もございます。

ローンシミュレーション