彦根市の物件は丸三不動産にお任せください!様々な条件からぴったりの物件をお探しいただけます。

売地物件ID:012615

  • 情報更新日:2024年03月01日

ホームタウン大堀II期 01号地

  • 1,153.251万円 @21.60万/坪
  • 彦根市大堀町
  • JR東海道線 南彦根駅 徒歩27分

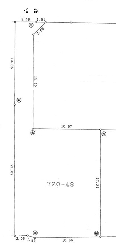
  • 176.50m²(53.39坪) 

  • 南西,南東 

外観写真・内観写真

間取図

物件概要

現況 更地 引渡 相談
土地面積 176.50m²(53.39坪) 接道状況 角地(接道方向:南西/南東)
地目 宅地 用途地域 第一種住居地域
建ぺい率 70% 容積率 200%
都市計画 市街化区域 土地権利 所有権
取引態様 仲介 建築条件
その他費用 - 小学校区 旭森小学校
設備・条件 水道:公営/ガス:都市ガス/排水:下水
備考 ※南東側接道部、道路と敷地に高低差有(現状車の出入り不可) ※敷地南東角に消火栓標識が設置されています

物件所在マップ

周辺施設
※情報更新のタイミング上、地図の施設情報は実際と異なる場合や、最新情報に更新されていない場合もございます。

ローンシミュレーション