滋賀県彦根地域の不動産売買・賃貸は、丸三不動産にお任せください!
ご来店案内予約
物件リクエスト
会社概要
賃貸検索
0749-23-0303
月曜~土曜
定休日:日曜・祝日
9:00~17:00(土曜日のみ10時から)
ご希望のお客様には物件満載の情報誌をプレゼント!
売りたい!査定してほしい!も、お気軽にお問い合わせ下さい!
彦根市の物件は丸三不動産にお任せください!様々な条件からぴったりの物件をお探しいただけます。
売買物件
物件詳細
前のページに戻る
売地
物件ID:012549
情報更新日:2025年07月23日
Tweet
南川瀬町
880
万円
@10.53万/坪
彦根市南川瀬町
JR東海道線 河瀬駅 徒歩12分
276.21m²(83.55坪)
北東
外観写真・内観写真
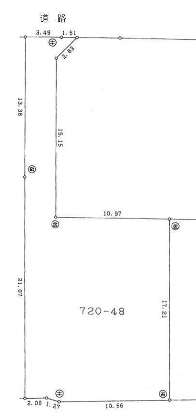
間取図
物件概要
現況
更地
引渡
相談
土地面積
276.21m²(83.55坪)
接道状況
一方(接道方向:北東)
地目
宅地
用途地域
第一種住居地域
建ぺい率
60%
容積率
200%
都市計画
市街化区域
土地権利
所有権
取引態様
仲介
建築条件
無
その他費用
-
小学校区
河瀬小学校
設備・条件
水道:公営/排水:下水
備考
※水道加入金別途要 ※上下水道引込、水路橋は契約後設備して引渡し
https://www.marusan.tv/sp/search_baibai/detail.php?id=9205
物件所在マップ
周辺施設
小・中学校
病院・診療所など
保育園・幼稚園
スーパーなど
コンビニ
※情報更新のタイミング上、地図の施設情報は実際と異なる場合や、最新情報に更新されていない場合もございます。
ローンシミュレーション
オススメ物件
1,104.7
万円
彦根市地蔵町
more
980
万円
彦根市橋向町
more
1,159.5648
万円
彦根市高宮町
more
1,141
万円
東近江市佐野町
more
600
万円
彦根市橋向町
more
990
万円
彦根市開出今町
more
1,100
万円
彦根市南川瀬町
more
683
万円
犬上郡多賀町多賀下屋敷
more
795
万円
彦根市平田町
more
980
万円
彦根市河原2丁目
more
物件一覧に戻る