滋賀県彦根地域の不動産売買・賃貸は、丸三不動産にお任せください!
ご来店案内予約
物件リクエスト
会社概要
賃貸検索
0749-23-0303
月曜~土曜
定休日:日曜・祝日
9:00~17:00(土曜日のみ10時から)
ご希望のお客様には物件満載の情報誌をプレゼント!
売りたい!査定してほしい!も、お気軽にお問い合わせ下さい!
彦根市の物件は丸三不動産にお任せください!様々な条件からぴったりの物件をお探しいただけます。
売買物件
物件詳細
前のページに戻る
売地
物件ID:012436
情報更新日:2024年05月17日
Tweet
西今町
1,474.88
万円
@22.00万/坪
彦根市西今町
JR東海道線 南彦根駅 徒歩10分
221.63m²(67.04坪)
北東
外観写真・内観写真
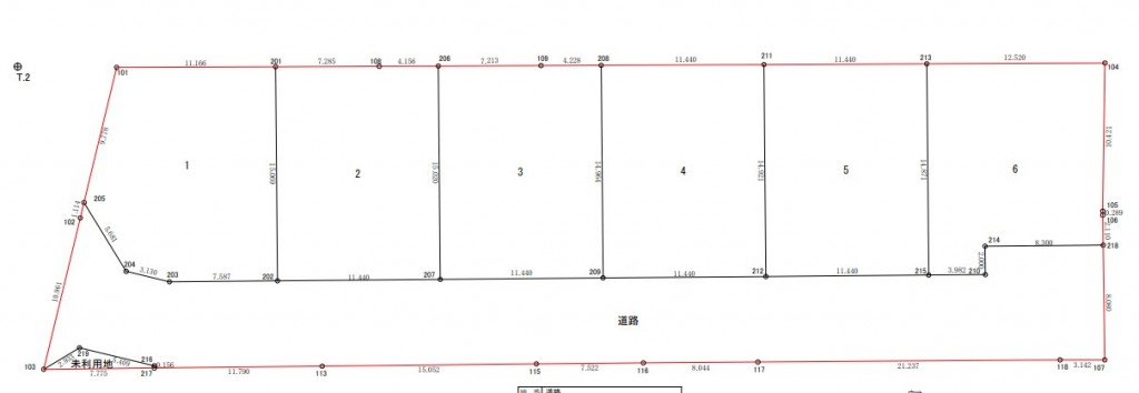
間取図
物件概要
現況
更地
引渡
相談
土地面積
221.63m²(67.04坪)
接道状況
一方(接道方向:北東)
地目
宅地
用途地域
第一種住居地域
建ぺい率
60%
容積率
200%
都市計画
市街化区域
土地権利
所有権
取引態様
仲介
建築条件
無
その他費用
-
小学校区
城南小学校
設備・条件
水道:公営/ガス:都市ガス/排水:下水
備考
-
https://www.marusan.tv/sp/search_baibai/detail.php?id=9092
物件所在マップ
周辺施設
小・中学校
病院・診療所など
保育園・幼稚園
スーパーなど
コンビニ
※情報更新のタイミング上、地図の施設情報は実際と異なる場合や、最新情報に更新されていない場合もございます。
ローンシミュレーション
オススメ物件
1,283.0734
万円
彦根市東沼波町
more
1,208.1021
万円
彦根市東沼波町
more
1,380
万円
彦根市川瀬馬場町
more
1,459.4415
万円
彦根市東沼波町
more
1,322
万円
彦根市東沼波町
more
1,282.0797
万円
彦根市東沼波町
more
1,239.6819
万円
彦根市大堀町
more
1,600
万円
彦根市高宮町
more
1,291.6944
万円
彦根市東沼波町
more
1,195.2
万円
彦根市彦富町
more
物件一覧に戻る