彦根市の物件は丸三不動産にお任せください!様々な条件からぴったりの物件をお探しいただけます。

中古戸建物件ID:014482

  • 情報更新日:2026年04月09日

彦根市日夏町

  • 1,580万円 @25.79万/坪
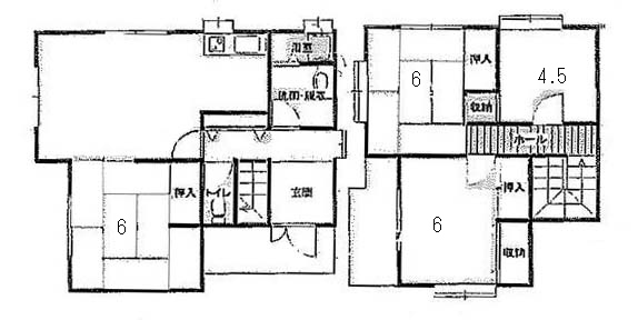
  • 彦根市日夏町 4LDK
  • JR東海道線 河瀬駅 徒歩27分

  • 107.00m² 

  • 1990年05月 

外観写真・内観写真

間取図

物件概要

現況 空家 引渡 相談
土地面積 202.55m²(61.27坪) 建物面積 -
延べ床面積 107.00m² 建物階数 2階建
建物構造 木造 接道状況 角地(接道方向:北東/北西)
地目 宅地 用途地域 無指定
建ぺい率 60% 容積率 200%
都市計画 市街化調整区域 土地権利 所有権
国土法 不要 取引形態 仲介
駐車場/料金 専用/- その他費用 -
小学校区 若葉小学校
設備・条件 水道:公営/ガス:プロパン/排水:下水/システムキッチン/バルコニー/収納スペース有/電気有り
備考 照明器具

物件所在マップ

周辺施設
※情報更新のタイミング上、地図の施設情報は実際と異なる場合や、最新情報に更新されていない場合もございます。

ローンシミュレーション