彦根市の物件は丸三不動産にお任せください!様々な条件からぴったりの物件をお探しいただけます。

中古マンション物件ID:014132

  • 情報更新日:2026年04月22日

日光ハイツ彦根壱番館

  • 1,530万円 -万/坪
  • 彦根市岡町 2SLDK
  • 近江鉄道近江本線 彦根口駅 徒歩5分

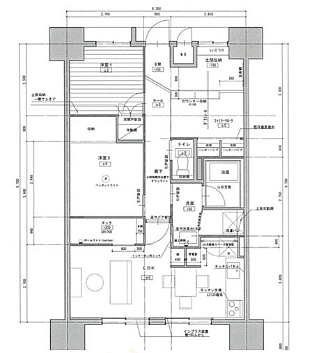
  • 58.57m² 壁芯 

  • 1992年03月 

外観写真・内観写真

間取図

物件概要

現況 空家 引渡 相談
土地面積 -- 建築面積 -
延べ床面積 - 専有面積 58.57m²
バルコニー面積 11.74m² 主要採光面
所在階/建階数 5階/11階建 建物構造 鉄筋コンクリート造
管理費 7,170円 修繕積立金 11,390円
取引態様 仲介 駐車場 / 料金 確認/-
小学校区 佐和山小学校 その他費用 -
設備・条件 水道:公営/ガス:都市ガス/排水:下水/三口コンロ/システムキッチン/追い焚き風呂/W.INクローゼット/オートロック玄関/エレベータ/バルコニー/フローリング/駐輪場/バイク置場/バリアフリー/ウォシュレット/収納スペース有
備考 ※ペット飼育可(規約有) ※2026年2月リフォーム済(●キッチン・浴室・トイレ・洗面台・給湯器新調 ●床・壁・天井・建具全面内装張替) ※駐車場空き状況は都度確認要
照明器具,玄関土間収納,ヌック,オートバス,ファミリークローク

物件所在マップ

周辺施設
※情報更新のタイミング上、地図の施設情報は実際と異なる場合や、最新情報に更新されていない場合もございます。

ローンシミュレーション