彦根市の物件は丸三不動産にお任せください!様々な条件からぴったりの物件をお探しいただけます。

中古戸建物件ID:014045

  • 情報更新日:2025年12月22日

彦根市大藪町

  • 2,480万円 @48.47万/坪
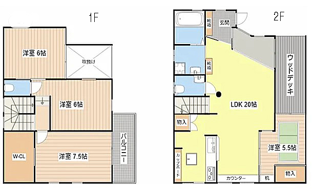
  • 彦根市大藪町 4LDK
  • JR東海道線 彦根駅 3995m

  • 105.45m² 

  • 2011年11月 

外観写真・内観写真

間取図

物件概要

現況 空家 引渡 相談
土地面積 169.17m²(51.17坪) 建物面積 -
延べ床面積 105.45m² 建物階数 2階建
建物構造 木造 接道状況 一方(接道方向:南東)
地目 宅地 用途地域 第一種中高層住居専用地域
建ぺい率 60% 容積率 200%
都市計画 市街化区域 土地権利 所有権
国土法 不要 取引形態 仲介
駐車場/料金 専用/- その他費用 -
小学校区 金城小学校
設備・条件 水道:公営/排水:下水/システムキッチン/床下収納/W.INクローゼット/バルコニー/フローリング/収納スペース有
備考 ウッドデッキ,シューズボックス,カップボード,吹抜,トイレ2カ所,オール電化

物件所在マップ

周辺施設
※情報更新のタイミング上、地図の施設情報は実際と異なる場合や、最新情報に更新されていない場合もございます。

ローンシミュレーション