滋賀県彦根地域の不動産売買・賃貸は、丸三不動産にお任せください!
ご来店案内予約
物件リクエスト
会社概要
賃貸検索
0749-23-0303
月曜~土曜
定休日:日曜・祝日
9:00~17:00(土曜日のみ10時から)
ご希望のお客様には物件満載の情報誌をプレゼント!
売りたい!査定してほしい!も、お気軽にお問い合わせ下さい!
彦根市の物件は丸三不動産にお任せください!様々な条件からぴったりの物件をお探しいただけます。
売買物件
物件詳細
前のページに戻る
売地
物件ID:013928
情報更新日:2025年02月19日
Tweet
グリーンピア彦富 01号地
1,294.07
万円
@24.80万/坪
彦根市彦富町
JR東海道線 稲枝駅 徒歩2分
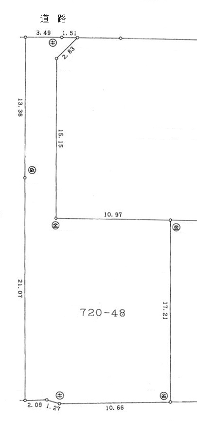
172.51m²(52.18坪)
南西
外観写真・内観写真
間取図
物件概要
現況
更地
引渡
期日指定
土地面積
172.51m²(52.18坪)
接道状況
一方(接道方向:南西)
地目
宅地
用途地域
第一種中高層住居専用地域
建ぺい率
60%
容積率
200%
都市計画
市街化区域
土地権利
所有権
取引態様
仲介
建築条件
無
その他費用
-
小学校区
稲枝東小学校
設備・条件
水道:公営/ガス:プロパン/排水:下水/駅近
備考
※彦富町自治会(笹田地区)に属します 〈自治会費等別途要〉 ※水道加入金:40,800円要(13mm)
https://www.marusan.tv/sp/search_baibai/detail.php?id=10584
物件所在マップ
周辺施設
小・中学校
病院・診療所など
保育園・幼稚園
スーパーなど
コンビニ
※情報更新のタイミング上、地図の施設情報は実際と異なる場合や、最新情報に更新されていない場合もございます。
ローンシミュレーション
オススメ物件
1,153.45
万円
彦根市宇尾町
more
1,276
万円
彦根市東沼波町
more
1,198
万円
彦根市日夏町
more
1,390
万円
彦根市彦富町
more
1,159.4129
万円
彦根市高宮町
more
1,296.38
万円
彦根市彦富町
more
1,182.8186
万円
彦根市高宮町
more
1,260
万円
彦根市平田町
more
1,363.4649
万円
彦根市大堀町
more
1,282.8402
万円
彦根市東沼波町
more
物件一覧に戻る