滋賀県彦根地域の不動産売買・賃貸は、丸三不動産にお任せください!
ご来店案内予約
物件リクエスト
会社概要
賃貸検索
0749-23-0303
月曜~土曜
定休日:日曜・祝日
9:00~17:00(土曜日のみ10時から)
ご希望のお客様には物件満載の情報誌をプレゼント!
売りたい!査定してほしい!も、お気軽にお問い合わせ下さい!
彦根市の物件は丸三不動産にお任せください!様々な条件からぴったりの物件をお探しいただけます。
売買物件
物件詳細
前のページに戻る
売地
物件ID:013908
情報更新日:2025年02月06日
Tweet
彦根市平田町
1,500
万円
@24.79万/坪
彦根市平田町
JR東海道線 南彦根駅 徒歩24分
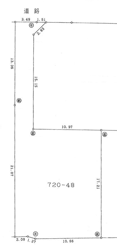
200.00m²(60.5坪)
南西
外観写真・内観写真
間取図
物件概要
現況
更地
引渡
相談
土地面積
200.00m²(60.5坪)
接道状況
一方(接道方向:南西)
地目
雑種地
用途地域
第一種中高層住居専用地域
建ぺい率
60%
容積率
200%
都市計画
市街化区域
土地権利
所有権
取引態様
仲介
建築条件
無
その他費用
-
小学校区
平田小学校
設備・条件
排水:下水
備考
※現況駐車場として賃貸中
https://www.marusan.tv/sp/search_baibai/detail.php?id=10564
物件所在マップ
周辺施設
小・中学校
病院・診療所など
保育園・幼稚園
スーパーなど
コンビニ
※情報更新のタイミング上、地図の施設情報は実際と異なる場合や、最新情報に更新されていない場合もございます。
ローンシミュレーション
オススメ物件
1,280
万円
彦根市日夏町
more
1,581
万円
彦根市西今町
more
1,295.3256
万円
彦根市大堀町
more
1,277.4273
万円
彦根市東沼波町
more
1,324.1405
万円
彦根市東沼波町
more
1,236.3296
万円
彦根市東沼波町
more
1,342
万円
彦根市芹橋1丁目
more
1,355
万円
彦根市戸賀町
more
1,200
万円
彦根市芹橋2丁目
more
1,296.38
万円
彦根市彦富町
more
物件一覧に戻る