売買
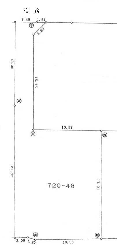
彦根市平田町 売地 1,000万円
| 物件ID | 013289 |
|---|---|
| 所在地 | 彦根市平田町 |
| 最寄り駅 | JR東海道線 彦根駅 |
| 所要時間 | 徒歩38分 |
| 価格 |
1,000万円 @9.45万/坪 |
| 地積(m²) | 349.98m²(105.86坪) |
| 現況 | 上物有 |
| 引渡 | 相談 |
| 接道状況 | 一方(接道方向:北東) |
| 地目 | 宅地 |
| 用途地域 | 第一種中高層住居専用地域 |
| 建ぺい率 | 60% |
| 容積率 | 200% |
| 都市計画 | 市街化区域 |
| 土地権利 | 所有権 |
| 建築条件 | 無 |
| 取引態様 | 仲介 |
| その他費用 | - |
| 設備・条件 | 水道:公営/排水:下水 |
| 小学校区 | 平田小学校 |
| 備考 | ※上物有(木造瓦葺2階建:延面積103.81㎡ S41年6月築) ※建物一部未登記あり ※南側道路は非道路です |
情報更新日時:2025年05月27日