売買
彦根市日夏町 中古戸建 1,890万円
| 物件ID | 010463 |
|---|---|
| 所在地 | 彦根市日夏町 |
| 最寄り駅 | JR東海道線 河瀬駅 |
| 所要時間 | 徒歩17分 |
| 価格 |
1,890万円 @21.04万/坪 |
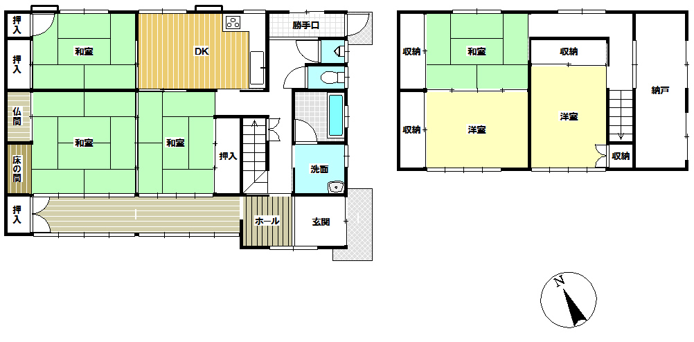
| 間取り | 6SLDK |
| 築年月 | 1997年10月 |
| 国土法 | 不要 |
| 駐車場 / 料金 | 専用 |
| 現況 | 空家 |
| 引渡 | 相談 |
| 接道状況 | 一方(接道方向:北東) |
| 地目 | 雑種地 |
| 用途地域 | 無指定 |
| 建ぺい率 | 70% |
| 容積率 | 200% |
| 都市計画 | 市街化調整区域 |
| 土地権利 | 所有権 |
| 建築条件 | 無 |
| 取引態様 | 仲介 |
| その他費用 | - |
| 設備・条件 | 水道:公営/ガス:プロパン/排水:浄化槽/システムキッチン/追い焚き風呂/電気有り |
| 小学校区 | 亀山小学校 |
| 備考 | - |
情報更新日時:2025年04月23日