売買
彦根市栄町2丁目 中古戸建 3,100万円
| 物件ID | 014486 |
|---|---|
| 所在地 | 彦根市栄町2丁目 |
| 最寄り駅 | JR東海道線 彦根駅 |
| 所要時間 | 2500m |
| 価格 |
3,100万円 @51.63万/坪 |
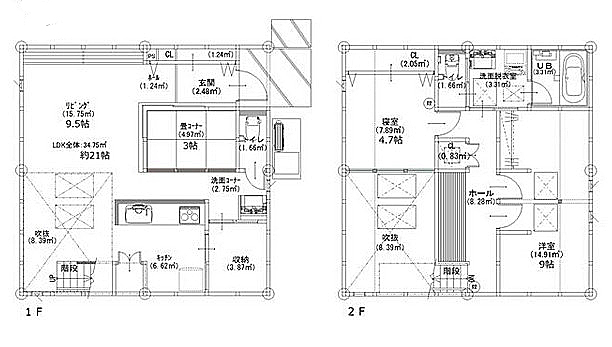
| 間取り | 3LDK |
| 築年月 | 2018年08月 |
| 国土法 | 不要 |
| 駐車場 / 料金 | 専用 |
| 現況 | 居住中 |
| 引渡 | 相談 |
| 接道状況 | 一方(接道方向:北東) |
| 地目 | 宅地 |
| 用途地域 | 第一種住居地域 |
| 建ぺい率 | 60% |
| 容積率 | 200% |
| 都市計画 | 市街化区域 |
| 土地権利 | 所有権 |
| 建築条件 | 無 |
| 取引態様 | 仲介 |
| その他費用 | - |
| 設備・条件 | 水道:公営/ガス:都市ガス/排水:下水/IHコンロ付き/システムキッチン/追い焚き風呂/床下収納/TVモニター付インターホン/ウォシュレット/収納スペース有/玄関ポーチ |
| 小学校区 | 城西小学校 |
| 備考 | ※文化財包蔵地内(城下町遺跡) ※都市計画道路(計画決定) 吹抜,シューズIC,食洗器,畳コーナー,トイレ2カ所,エコキュート,オール電化 |
情報更新日時:2026年04月14日