売買
すまい・る・タウン大藪ひらただい 02号地 売地 1,368万円
| 物件ID | 014298 |
|---|---|
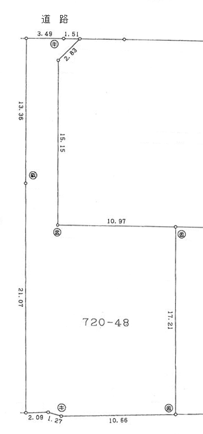
| 所在地 | 彦根市大藪町 |
| 最寄り駅 | JR東海道線 南彦根駅 |
| 所要時間 | 徒歩30分 |
| 価格 |
1,368万円 @28.50万/坪 |
| 地積(m²) | 158.70m²(48坪) |
| 現況 | 更地 |
| 引渡 | 相談 |
| 接道状況 | 一方(接道方向:南東) |
| 地目 | 宅地 |
| 用途地域 | 第一種低層住居専用地域 |
| 建ぺい率 | 60% |
| 容積率 | 100% |
| 都市計画 | 市街化区域 |
| 土地権利 | 所有権 |
| 建築条件 | 無 |
| 取引態様 | 仲介 |
| その他費用 | - |
| 設備・条件 | 水道:公営/ガス:都市ガス/排水:下水 |
| 小学校区 | 金城小学校 |
| 備考 | ※施設設備負担金:110,000円税込一括、境界ブロックフェンス負担金:121,000円税込一括 ※自治会集会所分担金:40,000円(税無)、自治会費:500円/月額 ※現状渡し |
情報更新日時:2025年11月14日